*** Walterswil .. Neubau EFH .. im Obstgarten ***
maximale Energieeffizenz und Komfort .. mit Aussicht
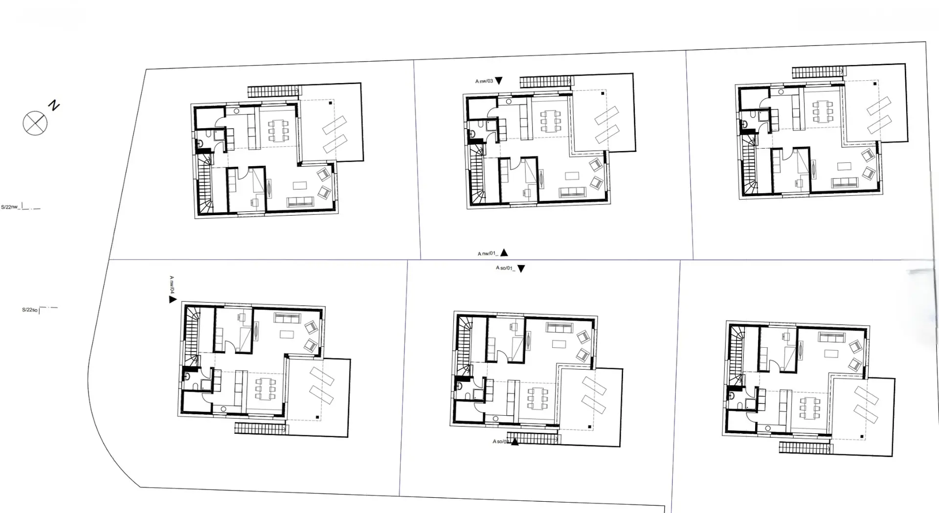
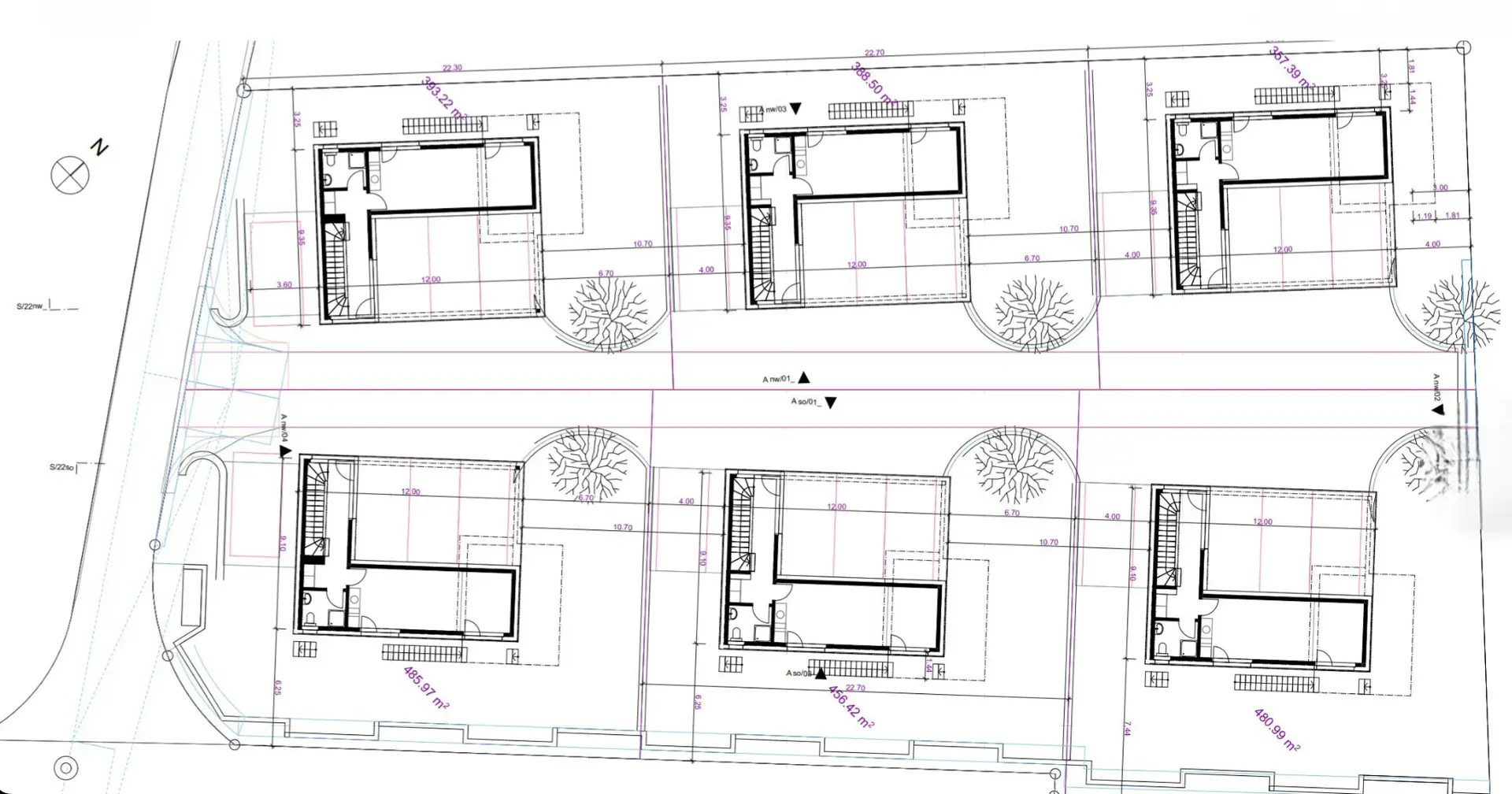
in 5746 Walterswil (SO) entstehen 6 grosszügige, innovative 6 ½ Zimmer Einfamilienhäuser
in Minergie-P mit Photovoltaik & Wohnraumlüftung
Luft/Wasser Wärmepumpe, energiesparendes Trockenbau Bodenheizsystem
hochwertige hinterlüftete Fassade mit Steinwolldämmung und Basalt-Fassadenplatten
mit Holzoptik (Lavastein) // gehobener Ausbaustandard








Beheizte Netto- Wohnfläche 195m2
Studio im Erdgeschoss als separate Einliegerwohnung möglich.
Wohnen im OG mit grosser Terrasse und Aussicht, angrenzend an Landwirtschaftszone
Grundstückgrössen ab 357m2 bis 485m2
Eckdaten:
Volumen SIA116: Haus und Nebenbauten 1’222.34 m3
Bruttogeschossfläche: UG 64.65m2, EG 64.65m2, OG 100.23m2, DG 100.23m2, Total 329.77 m2
Nettogeschossfläche: UG beheizt 9.63m2 m2, EG beheizt 44.77m2, OG beheizt 73.44m2, DG beheizt 68.01m2, Total beheizt 195.85 m2
Kellerräume unbeheizt 33.09m2, Total unbeheizt 33.09 m2
Carport/Eingang 48.4m2
Preis ab 1’500’000 Fr. (Schlüsselfertig, inkl. Gebühren und Umgebung mit eigenem Obstbaum)
*** Bankengeprüft ***
Ist Ihnen die Grösse, der Preis oder die Grundstücksfläche nicht angemessen?
Zögern Sie nicht, Ihre individuellen Bedürfnisse zu äussern.
Fast alle Wünsche sind realisierbar!
Wir würden uns freuen, Ihre Wünsche und Träume zu verwirklichen.
……………… Es besteht noch keine definitive Baubewilligung!
……………. Wir entwickeln gerne ein neues Projekt für Sie.
……….. **********
- Interessenten melden sich bitte mit Namen & Adresse per E-mail, gerne senden wir Ihnen weitere Infos.
- Bei Fragen kontaktieren Sie uns bitte per E-mail mit Angabe Ihrer Telefonnummer, wir rufen Sie dann zurück.
Kontakt-Adresse:
MI Handel AG
Mario Iannuzzelli
Hintere Schachenstrasse 35
5013 Niedergösgen
Schweiz
E-Mail:
mi.handel.ag@gmail.com




